Не упусти свой шанс! Последние акции от застройщиков  ▼

Продается 3-комнатная квартира, Подмосковный бул. (Павшинская Пойма мкр), 2

18 500 000 Р

Красногорск г. (Красногорск гор. округ)

Подмосковный бул. (Павшинская Пойма мкр)2

Дата публикации: 14 марта 2026

Дата обновления: 16 марта 2026

Телефон: 
Показать телефон

+7 (499) 372-92-13

Агентство:  МИЭЛЬ

Этаж: 3 / 22

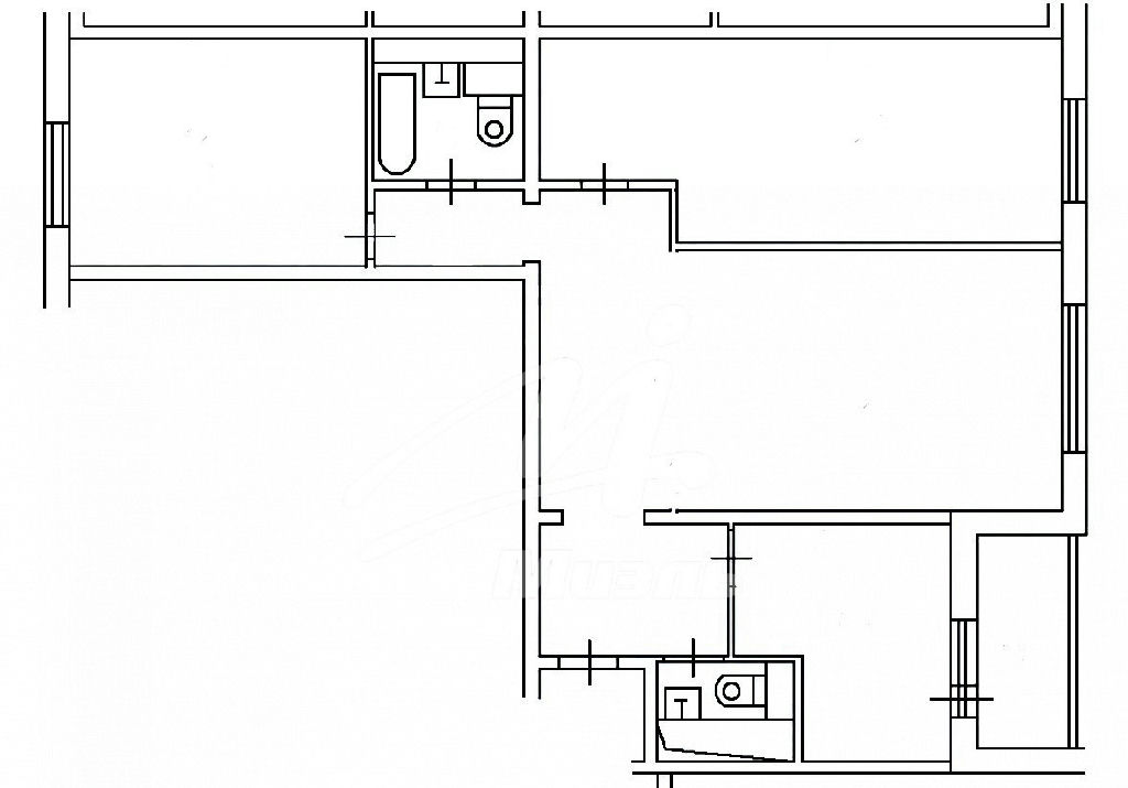
Общая: 97,9 м2

Жилая: 64 м2

Кухня: 15 м2

Комнаты: 28 20 16 м2

Балкон/лоджия: лоджия

Лифт: есть лифт

Окна: окна во двор

Санузел: два санузла

Мусоропровод: есть

Состояние квартиры: хорошее состояние

Тип дома: панельный

Год постройки: 2010

Территория: огороженная

Парковка: не указано

Статус сделки: продажа

Сделка: альтернатива

Собственность: не указано

Основание права собственности: не указано

Описание

Арт. 132716468
РЯДОМ С МЕТРО! ДОМ В ОКРУЖЕНИИ БУЛЬВАРОВ!
Вы в поисках жилья в Красногорске в зеленом районе с развитой инфраструктурой? Тогда вы на правильном пути!
Прекрасное расположение! Рядом с метро! Всего 5 минут пешком от станции МЦД-2 "Пенягино" и 15 минут на транспорте до метро "Тушинская". Остановка рядом с домом.
Дом 2010 года постройки. Серия И-155.
Предлагается к продаже замечательная трехкомнатная квартира! Общая площадь квартиры 97,9 м2. Комнаты 28, 20 и 16 м2. Просторная кухня 15 м2. Два санузла. Застекленная лоджия с выходом из кухни. Окна выходят в сторону очень зеленого двора и ориентированы на разные стороны дома.
Пол и стены выровнены. В хорошем состоянии. На полу в комнатах ламинат, в прихожей, санузлах и на кухне - плитка. Натяжной потолок. Двойная металлическая дверь. Сигнализация. Требуется частичный ремонт кухни.
Чистый подъезд. Три лифта.
Экологически благоприятный район. В 8 минутах пешком от дома расположен "Парк Метростроителей". Это большой и просторный парк, который идеально подходит для долгих прогулок и активного досуга на свежем воздухе. С другой стороны района - красивая оборудованная набережная Москвы-реки.
Развитая инфраструктура района обеспечивает комфортное проживание. Все объекты социального назначения находятся в пешей доступности. Во дворе дома расположен детский сад, школа - в 4 минутах пешком.
Большой зеленый двор с детскими и спортивными площадками.
Один взрослый собственник. ДКП 2013 года. Альтернативная продажа. Без обременений. Без перепланировки. Полная стоимость в договоре. Никто не прописан.
Внимание покупателям! Временно квартира используется под хранение личных вещей. При переезде будет освобождена полностью. Кухня и два хороших шкафа остаются и входят в стоимость.
Любимые покупатели и уважаемые коллеги! Звоните! Приходите! Мы полностью готовы к сделке!

Квартира на карте

ПанорамыКарта

Похожие объявления

Спецпредложения
Добавить объявление